Apartamento T3

Lisboa, Lisboa

248.000 €

Apartamento T3
Enviar imóvel a amigo
 
   
 
   
Saber mais »  
Campos obrigatórios *
Apartamento T3, Lisboa, Lisboa 248.000 € REF: TM0263
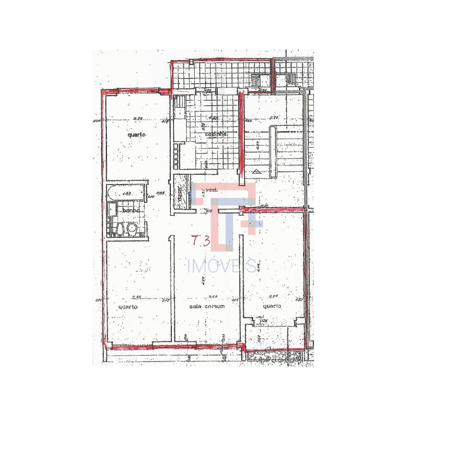
Apartamento T3 com 70 m2 em Benfica.

Prédio sem elevador - Ano de construção 1987
Paredes lacadas a branco
Cozinha lacada a branco totalmente equipada com eletrodomésticos Ariston com 2 anos de garantia.
Portas/Roupeiros lacados a branco
Chão em soalho flutuante AC4 White.
Porta blindada
Caixilharia em alumínio com vidro duplo.

Com a seguinte distribuição:

- Cozinha com 9 (m2)
- Hall com 4.16 (m2)
- Corredor com 5 (m2)
- Sala com 12.25 (m2)
- Quarto com 9.16 (m2)
- Quarto com 11.96 (m2)
- Quarto com 8 (m2)
- Wc com 3(m2)

Excelente localização.
Estacionamento, serviços, comércio, bancos, escolas, jardins e acessos.

Mais informação contacte-nos: 214 759 898
3 Quartos
1 Casa de Banho
68 m² Área Útil
68,5 m² Área Bruta:
C
Tipo de imóvel Apartamento
Tipologia 3 Quartos
Objetivo Venda
Estado Usado
Preço 248.000 €
Ano Construção 1987
País Portugal
Distrito Lisboa
Concelho Lisboa
Freguesia Benfica
Zona N/D
Interessado no Imóvel? Contacte-nos para receber informações adicionais ou agendar visita.
 
   
 
 
 
Enviar
Características Gerais
Gerais
  •  
Divisões
Divisões Área Pavimento Paredes Tectos Observações
 
Meio Envolvente
  •  
Facilidades
  •  
Domótica
  •  
Energias Renováveis
  •